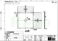
RSEE锐视 P-FLK2-300-300-R/BGW 开孔侧面导光面光源
0755 84689265 手机/微信:18320955412 QQ:2423332841 邮箱:2423332841@qq.com